Обяви 0 За нас Контакти
Продава 4-СТАЕН
град София, Център
544 755 €
1 065 448.17 лв.

(2 308 €, 4 514.06 лв./m2)
Цената е с включено ДДС
История на цената
Публикувана в 13:28 на 16 декември, 2025 год.
Обявата е посетена 865 пъти.
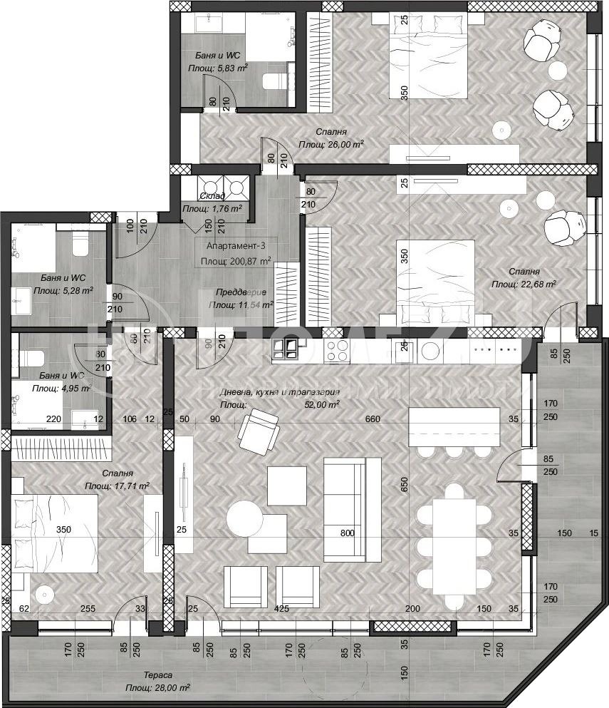
Площ:
236 m2
Етаж:
3-ти от 14
Строителство:
Тухла, Ще бъде въведен в експлоатация 2027 г.

Описание на имота:


ОТЛИЧНА ЛОКАЦИЯ !!! СТАРТИРАЛО СТРОИТЕЛСТВО !!! ЛУКСОЗНА СГРАДА !!!

Представяме на Вашето внимание четристаен апартамент в нова жилищна сграда без аналог на пазара в центъра на столицата. Апартаментът ще разполага със следното функционално разпределение:

входно антре, хол + кухненски бокс 52кв.м., три спални (две енсюит), три бани + тоалетни, склад, тераса 28кв.м.

Фасадата на сградата е съвременна и модерна с елегантни декоративни елементи, които подчертават обемите. Конструкцията е монолитна стоманобетонна с външни зидове от 25 см. тухли и 10 см. топлоизолация. Терасите са предвидени с ажурни и плътни парапети с височина от мин. 120 см. от готов под. А създаването на общо пространство в градската среда е предизвикателство за осигуряването му по функционален път, което допълва уютната обстановка и качеството на живот. Предвидена е богато озеленена, общодостъпна покривна тераса.

Обадете и цитирайте код: 141526
Особености
Тухла
Асансьор
Видео наблюдение
Контрол на достъпа
За контакт:
0875363330
Агенция:
ХОУМ ТУ Ю ОФИС ХРИСТО БОТЕВ
0875363330
ХОУМ ТУ Ю ОФИС ХРИСТО БОТЕВ logo
В imot.bg от 2024 г.
home2u.imot.bg
Адрес:
област София, гр. София, бул. Христо Ботев 75
http://home2u.bg
ИЗПРАТИ ЗАПИТВАНЕ
ИЗПРАТИ ЗАПИТВАНЕТО

Продава 4-СТАЕН
град София, Център
Обява: 1d176588453779334

544 755 €
1 065 448.17 лв.
История на цената
(2 308 €, 4 514.06 лв./m2)

Цената е с включено ДДС
ЗАПАЗИ ОБЯВАТА

Местоположение: град София, Център

Допълнителни данни за имотите в района и сравнение с други райони

Покажи

Период

и 5 месеца

* Средните цени са определени чрез медианна стойност